No items found.
Promotion
jusqu’au
À partir de
195500
195500
195500
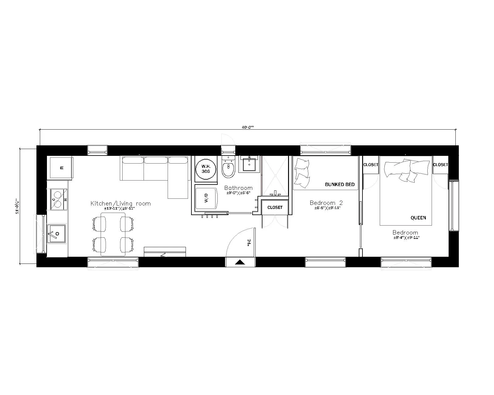
2
c. à c.
1
s.d.b.
480
pi ca
12
pi
x
40
pi
Personnalisable
Appareils
• Four mural à vitesse 22 po Bosch 500 ou équivalent
• Table de cuisson à induction à double brûleur
Chauffage et refroidissement
• Système de chauffage auxiliaire (inclus)
• Chauffage des plinthes (inclus)
• Climatisation
Plancher
• Planneau SPC
Finition murale intérieure
• Pin noué teinté
Finition du plafond intérieur
• Bois d'ingénierie
Comptoir
• Placage de bois IKEA (inclus)
• Quartz
• Bloc de boucherie
Éclairage
• Lumières cylindriques encastrés (incluses)
• Bande de DEL (incluse)
Options de revêtement extérieur
• Revêts horizontaux en acier imitation grain de bois (inclus)
• Panneaux de couture debout (inclus)
• Cèdre
Revêtement de toiture
• Toiture à joint debout avec garniture en acier
Plan d'étage

Parlez-nous de votre projet
Réservez un appel avec l'un de nos spécialistes de l'expérience UHA ou envoyez-nous un courriel à info@resimate.build.
Réserver un appel

.webp)
.webp)
.webp)