No items found.
Promotion
jusqu’au
À partir de
265000
265000
265000
2
c. à c.
1
s.d.b.
900
pi ca
15
pi
x
40
pi
Appareils
White appliances included; upgraded stainless steel available.
• 24" Refrigerator
• 30" Electric Range Stove
• 30" Microwave / Exhaust Fan
• 24" Dishwasher
• 24" Washer & Dryer Combo
Chauffage et refroidissement
• Mini-split Cold Climate Heating & Air Conditioning
Plancher
• Luxury Vinyl Plank
Finition murale intérieure
• Drywall & Primed
Finition du plafond intérieur
• Drywall & Primed
Comptoir
• Laminate (Included)
• Quartz
Éclairage
• Pot Lights
Options de revêtement extérieur
• Kaycan’ Vinyl Siding (Included)
• Evolve Stone
• Ultraplank Board and Batten Maibec
• Canexcel Siding
Revêtement de toiture
• White Steel (Included)
• Modern Black Steel
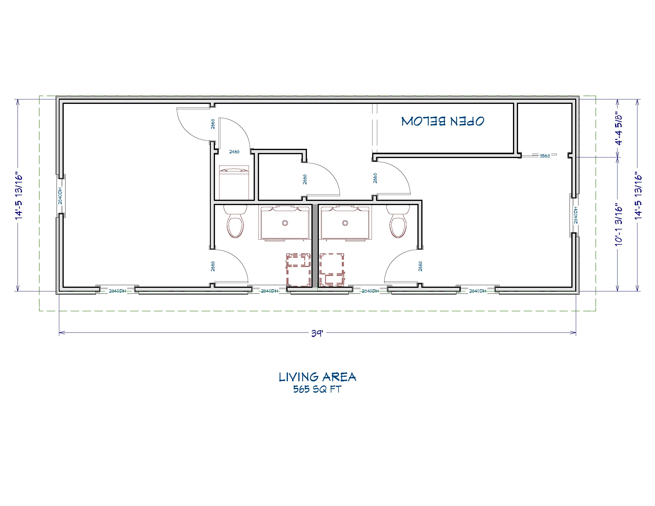
Plan d'étage

Parlez-nous de votre projet
Réservez un appel avec l'un de nos spécialistes de l'expérience UHA ou envoyez-nous un courriel à info@resimate.build.
Réserver un appel
