No items found.
Promotion
jusqu’au
À partir de
218000
218000
218000
1
c. à c.
2
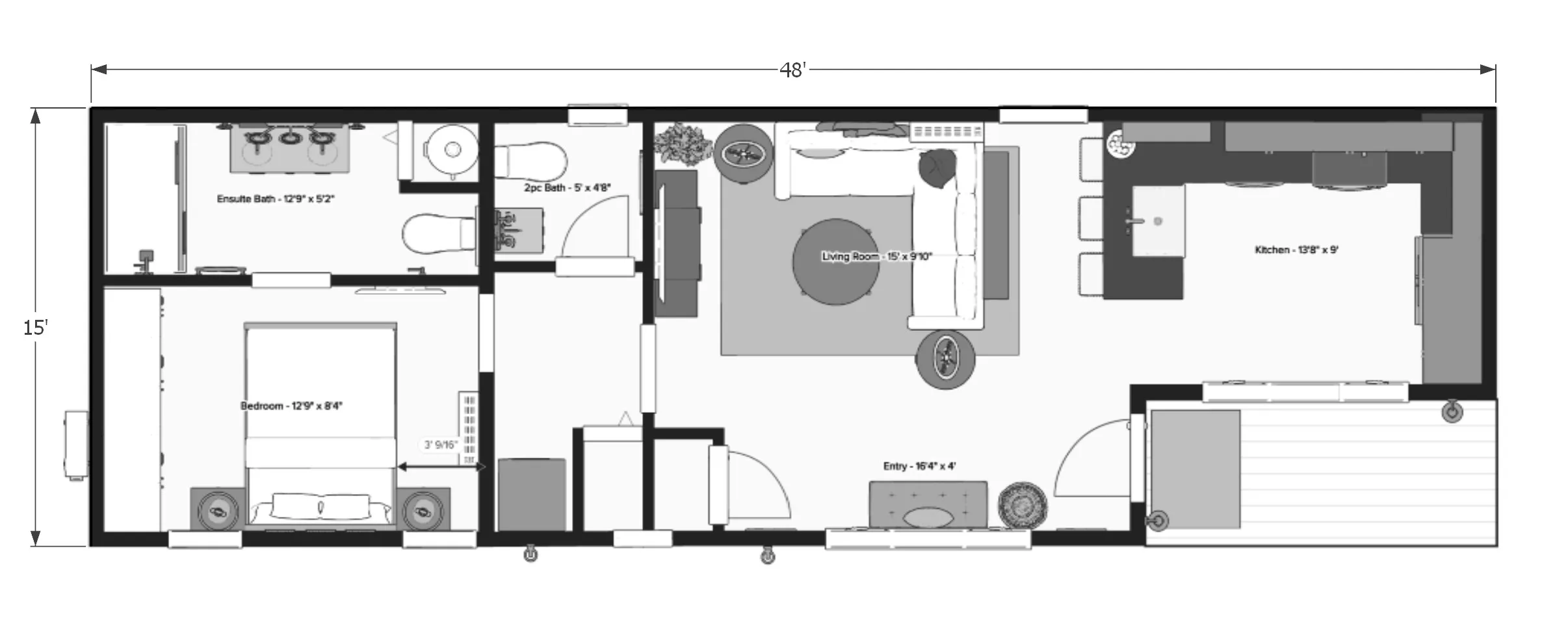
s.d.b.
720
pi ca
15
pi
x
48
pi
Appareils
White appliances included; upgraded stainless steel available.
• 30" Refrigerator 30" Electric Stove
• 30" Range Microwave
• Full Size Washer/Dryer All in One
Chauffage et refroidissement
• Mini Split Heat Pump with Supplemental Heat in Bathroom
Plancher
• Luxury Vinyl Plank (Two Colour Options)
Finition murale intérieure
• Shiplap (Painted White)
Finition du plafond intérieur
• Shiplap (Painted White)
Comptoir
• 2cm Quartz (Two Options)
• 3cm Quartz (Four Options)
Éclairage
• Pot Lights and Ceiling Fixture
Options de revêtement extérieur
• LP Smart Panel with Choice of Colour (Included)
• Steel / Aluminum Vinyl
• Faux Stone
Revêtement de toiture
• Metal 29 Gauge Tough Rib (Included)
• 26 Gauge Snap Lock
Plan d'étage

Parlez-nous de votre projet
Réservez un appel avec l'un de nos spécialistes de l'expérience UHA ou envoyez-nous un courriel à info@resimate.build.
Réserver un appel
