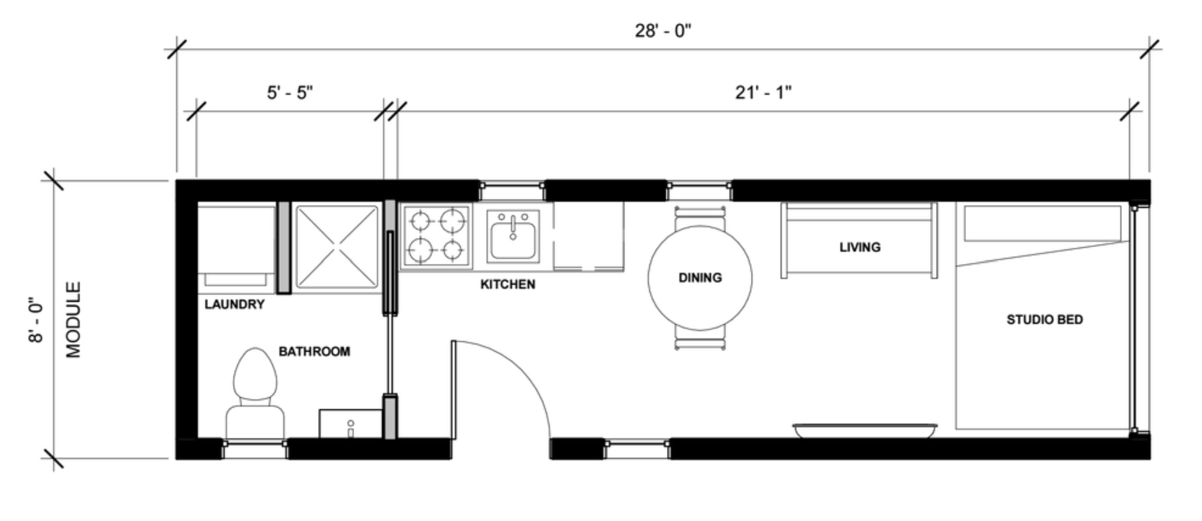
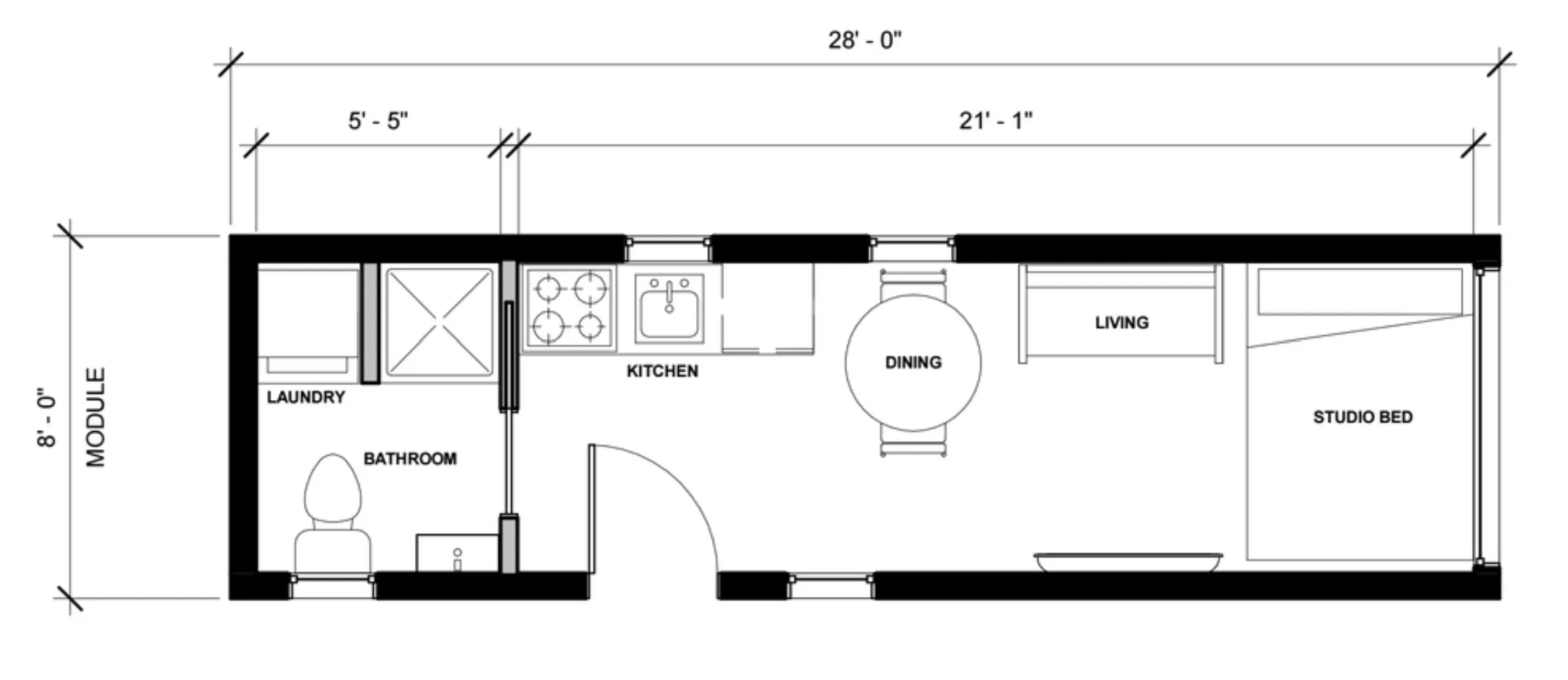
The GS-225
A model by
Ballance ContainersNo items found.
Promotion
Until
Starting at
115000
115000
115000
0
Bedroom
1
Bathroom
225
sqft
8
'
x
28
'
Appliances
Heating & Cooling
Flooring
Interior Wall Finish
Interior Ceiling Finish
Countertop
Lighting
Exterior Cladding Options
Roof Cladding
Floor Plan

Tell us about your project
Book a call with one of our ADU Experience Specialists, or email us at info@resimate.build.
Book a Call
